现代简约 | 由面到空间的自由张力
风格现代风格
户型四居
面积168㎡m²
2023-08-25 17:27        668
简介: 项目信息 项目坐标|Address:中粮·天悦 项目类型|Type:私宅 项目面积|Area:168㎡ 项目风格 |Style :现代简约 项目设计 |Designer :苗蕙 设计机构|Design:居上软装设计
苏州精装房设计



·

现代美学的精髓在于

将理性和感性有机结合

让简约的手法

传递出美感的独特味道

·


居上软装设计
,赞50

 项目信息 

目坐标|Address:中粮·天悦

项目类型|Type:私宅

项目面积|Area:168㎡

项目风格 |Style :现代简约

项目设计 |Designer :苗蕙

设计机构|Design:居上软装设计




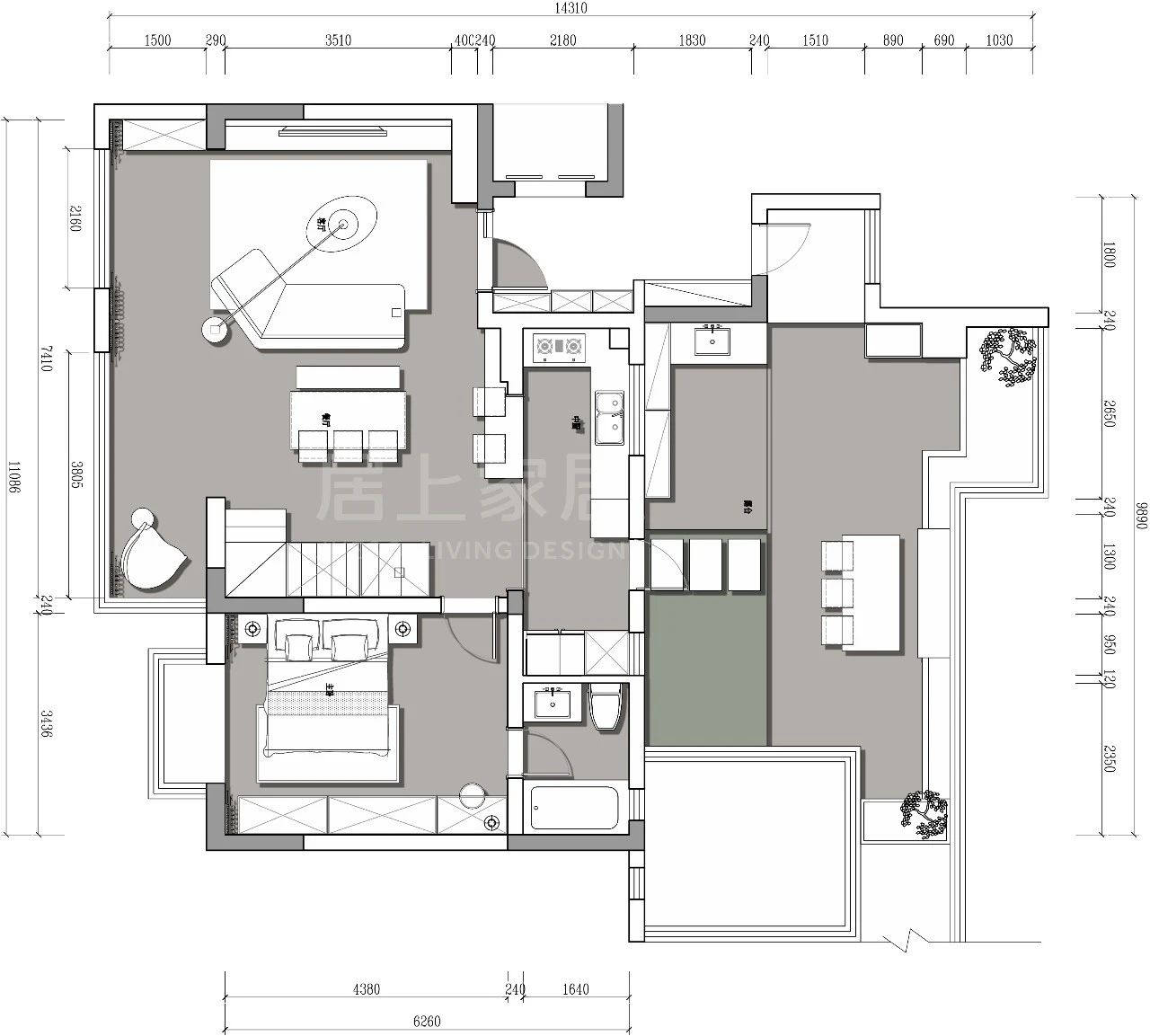
 平面布置图 

苏州精装房设计苏州精装房设计

左右滑动查看更多






设计解析

客厅 | LIVING ROOM

苏州精装房设计苏州精装房设计


简洁克制地选择浅灰色作为住宅的主色调

淡色系的设计为阳光的多时段晕染

提供了绝佳的背景


苏州精装房设计苏州精装房设计


设计尽可能摈弃符号与形式的内容

依照原本的布局

用构成和体块来区分界面

回归纯净的空间本质








餐厅 | DINING ROOM

苏州精装房设计苏州精装房设计



横厅保证了空间的通透性

热情的橙色调与地板块面的碰撞

给冷静的氛围注入了温润的质感


细腻地控制材质出现的频率

质朴而纯粹地展现住宅特性

反复推敲平衡块面的量体

构建出一个功能实用

又具有亲密感的居住环境


▽翻转手机效果更佳

苏州精装房设计








卧室 | BEDROOM

苏州精装房设计苏州精装房设计苏州精装房设计


主卧以暖调的米灰色为主

低饱和的橙调床品与独特造型的床头灯

展现软装碰撞之美


苏州精装房设计苏州精装房设计





儿童房 |CHILDREN'S ROOM 

苏州精装房设计苏州精装房设计

·主卧

苏州精装房设计苏州精装房设计

·女儿房



...


清晨与日暮,出行与归宿

家的意义在一次又一次的出走中

显得弥足珍贵

起码这世间有一处

代表你矢志不渝的爱与承载






·END·


案例信息
风格现代风格
户型四居
面积168㎡m²
免费申请户型规划
专业设计师1对1免费家装指导
最新案例
猜您喜欢

在线咨询

13814816082

预约
设计
免费
已有3486位业主获得专属软装设计
24小时
咨询热线
13814816082
联系居上 在线咨询