混搭风格 | 光影里的奢华~
风格混搭风格
户型四居
面积242m²
2023-08-25 16:22        471
简介:项目坐标|Address:万科·颐和玲珑 项目类型|Type:私宅 项目面积|Area:242㎡ 项目风格 |Style :混搭 项目设计 |Designer :苗蕙 设计机构|Design:居上软装设计
苏州精装房设计



·

家不仅需要温馨感

同时需要独特的品位和时尚

处处透着美学的家

更能触动人心

释放生活的力量

·


居上软装设计
,赞5



 项目信息 

目坐标|Address:万科·颐和玲珑

项目类型|Type:私宅

项目面积|Area:242㎡

项目风格 |Style :混搭

项目设计 |Designer :苗蕙

设计机构|Design:居上软装设计




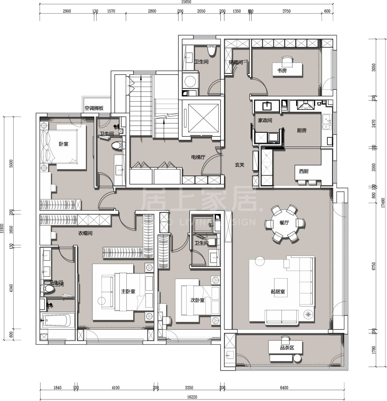
 平面布置图 

苏州精装房设计






设计解析

客厅 | LIVING ROOM

苏州精装房设计苏州精装房设计


两面落地窗的设计

时刻呈现着光影交错的画面

不同时间的光影变幻演绎成纪录片

美成一种经典


苏州精装房设计苏州精装房设计苏州精装房设计


艺术与生活在此时此刻没有边界感

彼此交汇、融合

肆意绽放生活美学

多种材质的呈现彰显低调轻奢的品味

色彩的协调性提升空间美感








餐厅 | DINING ROOM

苏州精装房设计苏州精装房设计



客餐厨一体化设计增加便利性

空间通透感更强

自带质感的菱格皮质餐椅

大理石与金属元素点缀其间

细节处为空间注入奢华的气质


苏州精装房设计








卧室 | BEDROOM

苏州精装房设计苏州精装房设计苏州精装房设计


重感复古黄铜板

精巧细致的雕花走线

细细品味

流露出法式复古的意趣

围绕着暖色调的布艺床品

独特的气质正在层层向外叠加


苏州精装房设计苏州精装房设计



...


清晨与日暮,出行与归宿

家的意义在一次又一次的出走中

显得弥足珍贵

起码这世间有一处

代表你矢志不渝的爱与承载






·END·


猜您喜欢

在线咨询

13814816082

预约
设计
免费
已有3486位业主获得专属软装设计
24小时
咨询热线
13814816082
联系居上 在线咨询