2023-02-08 10:20
533
项目地址 | 铂湾澜庭
项目设计 | 居上软装设计
户型面积 | 186㎡ D1
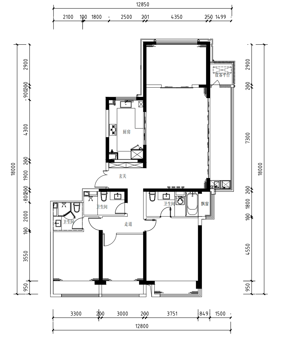
● 原始结构图 ●

户型 :四室两厅三卫
优点:
1、独立电梯厅可增加鞋柜储物空间;
2、入户有独立门厅缓冲,有衣帽鞋柜区域;
3、动线合理,仪式感强;
4、双阳台连接客厅,有助采光通风。
缺点:
1、电视背景造型完不对称;
2、储物空间需要优化;
3、卧室使用上需要根据实际家庭情况实际规划。
● 平面方案 Ⅰ ●
入户增加定制鞋帽柜,满足出入户的需求,客餐厅一体,以沙发作为软隔断,将空间一分为二,一字型的沙发搭配几个边椅,形式上更加自由。阳台比较狭长,一边满足基础的晾晒需求,另一边作为休闲区使用。
三次卧朝南,房间内做基础的收纳需求,主卧套房避免床直对卫生间的尴尬,以L型衣柜作为过渡空间,收纳也更强。北次卧作为独立书房使用,相对比较安静。
● 平面方案 Ⅱ ●
与第一稿有所不同的是,将客厅与阳台打通,餐厅选择圆桌,更方便多人用餐,在阳台新增一个吧台,可以在这里饮饮茶、品品酒,非常的悠闲。
软装意向分析
● 客厅 ●
客餐厅一体化,总体空间通透,摒弃了电视配置,将电视背景墙做成收纳柜,在满足日常使用习惯的同时,又合理利用空间,设计构思新颖。空间内设置了很多窗户能最大限度引入自然光,让室内更加明亮~这样的设计能够在达到客餐厅通透宽敞的同时实现储物空间最大化。
● 餐厅 ●
在餐厅设计之中,设计师更讲究圆元素的互动,圆桌、餐桌椅,减少了家人之间的距离之感,营造出更为亲密的生活情态。
● 主卧 ●

静谧舒适的主卧,舍去一切冗杂的装饰物,沉稳的原木地板和暖白的墙平和相得益彰,打造宁静舒适浪漫的睡眠环境,让居住者放松身心。通过不同材质相互烘托提升亲和的舒适感。
● 儿童房 ●


从孩子的角度出发,才能设计出最适合的成长环境。在空间的布局上,可以把休息区、学习区及游戏区进行划分。较实用的布局是是将床靠墙放置,可留出活动空间。预留出玩具、学习书本、衣物的收纳空间,根据实际年龄进行变动更改。
● 长辈房 ●

老年人喜欢阳光,所以房间设计也要考虑通风和光照,长期生活在通风透气有阳光的环境,身体也更健康。地面还要注意平整度,避免有高低差。像房门与地板之间,就完全不建议多做个“门槛”,只会增加隐患。家具边缘要注意圆角化处理,防止老人磕碰受伤。
● 书房 ●

书房的设计要以简为主,不宜复杂和花哨,书房中通铺木质地板,配备一个木质书桌,满满的书香气息,其次是书房的采光要做好,窗户宽敞,光照充足,即使是朝北的房间,采光也足够了,最后是整墙收纳柜的打造,有效的扩大了收纳空间,使得书房空间更加整洁,也可以用一些装饰品还装饰空间,提高整体空间的格调,丰富空间的层次感。
● 阳台 ●


洗衣收纳两不误的阳台设计,阳台上打造一组柜体,柜子留空,将洗衣机烘干机嵌入到柜体中,节省阳台空间,实用性也大大增强,柜子做到顶,不浪费空间大大提升空间利用率,在阳台也可以摆放一些休闲座椅,白天享受日光,晚上观赏月亮。


联系居上