2022-10-15 17:11
684
项目地址 | 览月阁
项目设计 | 居上软装设计
户 型 | 175㎡
项目空间分析
原平面分析

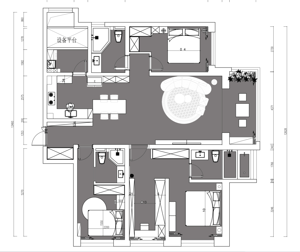
户型:四室两厅三卫
优点:
1、户型方正,区域划分功能齐全,四间卧室,两间拥有独卫,居住舒适度高。
2、四室中三间主卧,面积适中,不显拥挤。
3、拥有储藏室,方便家中杂物的收纳以及厨房用品的规整。
缺点:
1、阳台朝东,采光相对不足,晾晒衣服是一大难题。
2、厨房面积较小,做饭时会显空间拥挤,需要重新规划。
3、储物空间需要重新规划。
平面方案
图一
入户玄关拥有独立的收纳空间,方便放置日常出门需要穿的鞋子,鞋柜的到顶设计,增加了玄关的收纳面积,玄关另一侧可以做洞洞墙,方便挂一些包包,外套,围巾等,入户后便能见到客餐厅一体化,家中居住人口过多,选用圆形餐桌,饭菜放在中间每个人都可以够到,可以缓解尴尬。客厅中常规三人沙发,单配三张沙发椅,自由度更高,空间更加灵活方便,阳台上设计收纳柜,放置座椅和茶几,方便享受清晨的阳光,厨房中合理利用每一个角落空间,做转角收纳。
四间卧室中三间朝南,采光度好,其中两间朝南卧室拥有独立卫生间,隐私性好,北卧室靠近卫生间,动线合理,主卧中收纳空间充足,床尾摆放梳妆台,方便女主人日常的梳妆打扮,最小的一间卧室改造成书房使用,合理规划了每一个空间。
图二
在第二稿方案中,做开放式厨房处理,餐桌连接厨房,多人做饭时可以利用餐桌备菜,餐边柜也可以用来收纳厨房中的一些电器,缓解厨房中的收纳压力,客厅中选用了更加时尚自在的弧形沙发,打通了客厅和阳台的空间,视觉上空间更加宽敞,阳光也可以直接照进室内,增加客厅的采光,将原有的书房合并进主卧空间中,做成书房衣帽间二合一的设计,增加了主卧的空间利用率,大大提升了主卧的功能性。
项目空间分析

A主要空间
包含客厅&餐厅&主卧
此空间作为主人享受家居时光和重要会客区域,使用频率极高,家具强调高品质,美观性。舒适易打理。
B非主要空间
包含次卧&小孩房,此空间使用频率相对低,家具注重性价比和装饰性。
软装意向分析
客厅



客厅是传统的沙发+茶几+电视背景墙的布局,这样的布局不易踩雷,互动性也很好,打通客厅和阳台的空间后,阳台的阳光可以直接照进室内,参考室内装修安装同色系双层窗帘,不仅颜值高,还能有效地在白天阳光强烈的时候,缓解一下强光照射,为室内提供最舒适的灯光享受,在客厅铺上一块地毯,不仅能为脚感增添一份舒适,还能让空间颜值更高,可以挂一些挂画来增添空间的颜值。
餐厅
木质餐桌椅+大理石台面的岛台设计,让整个餐厅的颜值提升了不少,岛台也可以用作辅助料理台,这样就是很多人同时在厨房打下手,也不会显得拥挤,岛台上预留插座,可以接入电源,平时吃火锅、煲米饭的一些电器都可以在这里使用,大大提升了就餐的仪式感,打通餐厅和厨房,做开放式厨房设计时增加了家人的交流与互动,餐厅的灯光要服务于餐桌,佳肴在光线的渲染下,让人更有食欲,也能增加一些空间的层次感。
主卧
主卧整体色调偏典雅柔和,温馨静谧感的营造更加能够促进睡眠,主卧的衣柜到顶设计,让整个收纳功能得到提升,一半的展示衣柜瞬间提升空间的时尚感,也更加方便找衣服,线条灯射灯代替传统的主灯设计,营造出了更好地睡眠氛围。
南次卧
南次卧做儿童房设计,随着孩子一天天长大,儿童房的设计需要有童真又不会显幼稚,房间整体是莫兰迪色系,给人一种视觉上的舒适感,可以添加一些卡通元素点缀空间,满足孩子们对小世界的追求,孩子的储物空间和学习空间同样不可忽视,书柜衣柜的一体式,温馨且整洁,既节省了书房的空间,也让孩子有了学习与成长的天地!
北次卧

设计越简洁,设计越素雅的卧室住着也最舒服,浅色系装修为主显着整个空间宽敞明亮,不会有面积小的压抑感,搭配原木色的地面,点缀一些绿植,让稍显单调的卧室空间变得更加有活力,简洁清爽的卧室背景墙可以挂一些装饰画,视觉效果更加舒适。
衣帽间
中间卧室可以改造成书房和衣帽间二合一的设计,满足办公和收纳的需求,房间两侧摆放收纳柜,用来收纳衣物,茶色的玻璃柜门,增加空间通透感,也能更好地展示柜内的衣服,拿取更加的方便,衣柜中间可以摆放书桌,用来办公,环境安静,不受干扰。
洗衣房
厨房旁的杂物间装成洗衣房,拥有独立空间的洗衣房,设计了大量储物柜进行杂物收纳,洗衣房空间较小,布置简洁,非常温馨,清爽整洁的空间设计和实用的储物收纳,都让人一见倾心。
整体预算估算



联系居上