2022-09-22 16:51
734

项目地址 | 大华春和景明
项目设计 | 居上软装设计
户 型 | 135㎡
项目空间分析
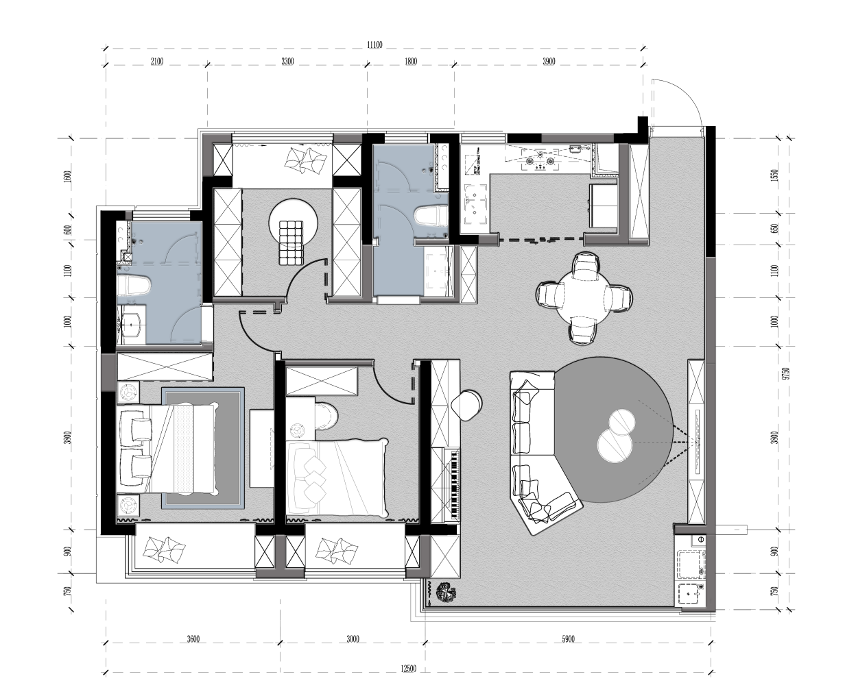
原平面分析

户型:三室两厅两卫
优点:
1、有独立玄关及门厅,门厅直对过道,空间、视线开阔。
2、竖厅布局、视野开阔、布局连贯、空间规整。
3、客厅连接阳台,有助采光通风,阳台面积大。
4、卫生间干湿分区和U型厨房等主要功能间的尺寸以及比例适中,有利于采光和通风,居住起来舒适、方便。
5、三个房间满足基本功能使用, 空间平整,两卧室朝南,采光通风效果好。
缺点:
1、储藏收纳需要充分考虑。
2、餐厅区域储藏收纳较小。
3、主卧储藏收纳较小。
平面方案
图一
卧室区域都在房间最里侧,隐私性很好,入户后左手边是沿墙面设计的玄关,走进房间后能看见客餐厅一体化的大空间,视野宽阔,长达5.8米的阳台,让整个客餐厅的采光更加充足,客厅中以沙发作为隔断,在沙发后摆放书桌做书房使用,书桌后方的整墙收纳柜,既可以用来收纳书籍文件,也可以摆放各种收藏品,美观与实用并存,沙发前方就是一个大的休闲娱乐空间,地上铺设地毯,可以成为很好地亲子娱乐场所,阳台上摆放休闲座椅,也是喝茶小憩的好选择,厨房中由洗手池,料理台,冰箱等物构成的U型厨房设计,很好地利用角落位置进行收纳。
最里侧的三间卧室,两间朝南,采光充足,主卧带有独立卫生间,有效保障了业主的隐私,除此以外,主卧中还带有书桌,这既可以是女主人的梳妆台,也可以用于日常办公使用,南次卧可以作为儿童房,带有独立书桌,是孩子学习成长过程中的必备,将飘窗底部设计抽屉,合理利用现有空间,轻松实现了收纳和装饰的两种作用,朝北次卧面积较小,更应好好利用飘窗,铺上舒适的飘窗垫,不需要过多设计,就能提升卧室的温馨感。
图二
在第二稿设计方案中,餐桌延伸出一块岛台,借岛台,增加餐厅的功能,能解决厨房功能和空间的延伸,家里有客人时,也可以利用岛台做餐桌台面,增加就餐区域,打通阳台区域,在阳台做洗衣台面,L型沙发设计灵活度更高。
图三
北次卧鉴于面积考虑改造为衣帽间,收纳功能变强大,满足女主人的衣物收纳需求,有一个属于自己的衣帽间,应该是每一个女孩子的梦想,也可以在这里摆张桌椅做化妆台使用,餐厅中使用圆形座椅代替原有的长方形餐桌,这样每个人到菜的距离就适中,避免出现夹不到菜的尴尬,客厅中根据家中人员的需要,摆上钢琴,供孩子平时的学习与娱乐,异形沙发增加了空间的颜值和时尚度。
软装空间分析

A主要空间
包含客厅&餐厅&主卧
此空间作为主人享受家居时光和重要会客区域,使用频率极高,家具强调高品质,美观性。舒适易打理。
B非主要空间
次卧&衣帽间,此空间使用频率相对低,家具注重性价比和装饰性。
软装意向分析
玄关
玄关处设计到顶鞋柜,顶部不落灰,更加方便清洁,同时收纳空间充足,鞋柜下方悬空,方便清洁打扫,也可以在此处设计灯带,增加底部照明,不会晚上光线暗,方便找鞋取鞋,如果设计成声控灯,更能增加生活的趣味性。
客厅
客厅书房二合一设计,空间明亮通透,没有小户型的压抑感,装修简约,整体色调以白色为主,米色和原木色为主,加入少量棕色,既清新自然,又舒适温馨,灰色窗帘加上白色的纱帘,简约的感觉立马就来了,沙发和墙面装饰以米咖色为主,米咖色的装饰色调使得整个客厅宁静和谐,展现出一种温馨的生活状态。
餐厅
餐边柜中间镂空,同时预留出的插座,更加方便小家电的使用,如咖啡机和电热水壶等等,这样一来,喝水泡茶就不需要跑厨房,给生活带来了极大的便利性。餐厅的装修偏清新自然,吃饭享受美食的同时,视觉也是极大的享受,客厅与餐厅的结合,更具有空间感和整体感,这样不论是客厅还是餐厅,视觉上都更显通透和宽敞。
主卧
主卧主打灰色系,给人一种低调沉稳的感觉,床头背景墙就是用简单的米白乳胶漆上色,配以画装饰,美化了整个空间,床尾就是一些造型独特的矮凳,实用又能美化空间,床的左侧靠墙做了排衣柜,到顶式衣柜设计可以延伸人们的视觉效果,衣柜旁边是通往卫生间的门,拥有独立的卫生间,淋浴区,更好地保证业主的隐私,也更加方便业主的生活。
南次卧
南次卧做儿童房设计,设计的要充满童趣又不显幼稚,可以伴随着孩子一路的成长,整体设计偏清新自然,床头做简易型的书架设计,摆放一副色彩鲜明的装饰画,增加室内的趣味性和活泼,床头悬空书桌设计,巧妙的避免了卫生死角,书桌一侧做一堆设计,增加室内收纳空间。
北次卧
考虑家中居住人口和实际需要,将原有的北次卧改为书房和衣帽间二合一的设计,一边做满墙的衣柜,收纳力满满,全家人的衣服都有处放了,另一侧则做成书桌,打造整墙的书架,如果觉得书桌不想做太长的话,也可以将剩下的一部分也打上衣柜,漆一刷,简直美爆了。
阳台
阳台绿化能美化室内环境外,还能调节区域小气候,减少噪音,增加生活情趣,洗衣休闲,一举两得。
整体预算估算



联系居上