2022-09-07 14:09
737

项目地址 | 大华春和景明
项目设计 | 居上软装设计
户 型 | 276㎡
项目空间分析
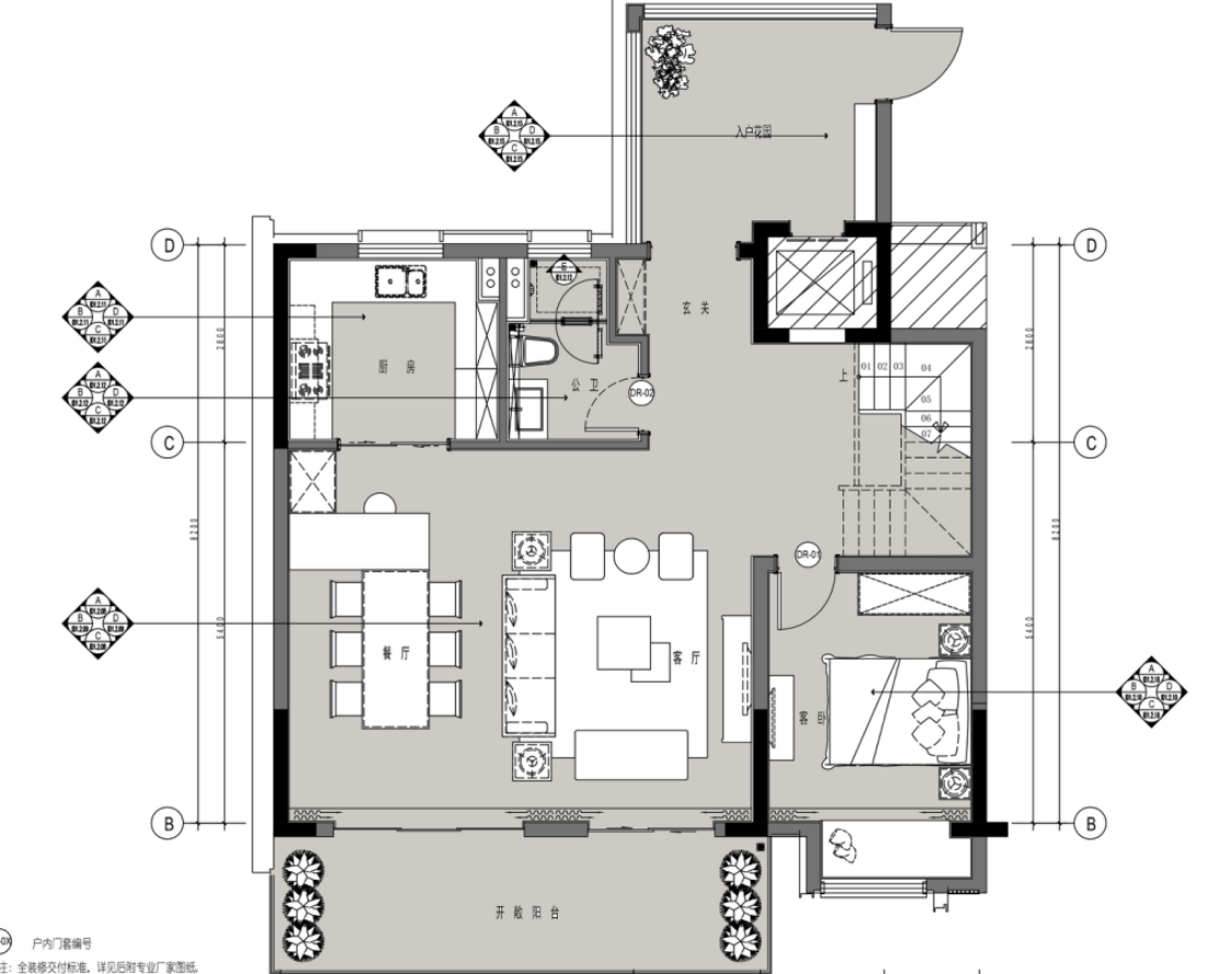
原平面分析



户型:四室三厅四卫
优点:
1、南北通透、视野开阔、布局连贯、动静分明,采光舒适,空间通透。
2、入户花园采光相对较好,阳台连接客厅,有助采光通风,一梯一户的形式,私密性相对较好。
3、客厅面积大,长宽比例好,满足多功能需求。
4、主卧套间空间大,满足日常起居需求,空间平整,三开间朝南,采光通风效果好。
5、顶楼采光和通风效果好,可满足平日休闲以及亲朋聚餐。
缺点:
1、储物空间需要优化,入户收纳需补充考虑,收纳空间相对不足。
2、两个次卧室相对空间较紧凑,根绝实际需求重新规划。
3、三楼可增加洗衣区,日常晾晒区
平面方案
1f图一
从房门口进入是一个入户花园,入户花园在客厅与玄关间起到一个过渡作用,将客厅与外界之间进行一个阻隔,增加了家庭的私密性,同时丰富了室内的空间格局,一楼是一室两厅一卫格局,一楼主要是一家人休闲和用餐场所,依墙定制的整墙收纳柜,收纳功能强大,开放式的客餐厅,以客厅中的沙发作为隔断,分隔餐厅和客厅,两个空间相互互动,同时也能做到互不干扰,开放式的阳台更方便太阳直接照进室内,采光充足,U型厨房布局将厨房空间最大化利用,一楼的房间可以做次卧,家中有客人来访或者年级较大不方便爬楼的老人,可以住这间卧室。
1f图二
相较于第一稿方案,在第二稿方案中一楼成为了一个完全的休闲娱乐办公场所,将睡眠休憩的功能留在二楼,这样娱乐休息之间也不会互相干扰,原有的卧室空间改为书房,增加柜体,既可以收纳家中杂物,也可以用来存储各类书籍文件,空间独立,不受干扰。
if图三
在第三稿方案中,原本厨房中的冰箱被挪到餐厅区域,餐厅和厨房相接处增加吧台设计,餐厅中设计的吧台是比较时尚的,也可以放置一些餐具,较少人用餐时就可以利用这个吧台,闲暇时,可以利用吧台喝红酒,更有情调。
2f图一
二楼主要是起居室,三间卧室朝南,采光充足,主卧有独卫,另两间卧室合用一间卫生间,早上上班匆忙时也不会显得拥挤,主卧中空间充足,设计了单独的U型衣帽间,收纳功能强大,主卫空间大,2人同时洗漱时,也不会显得拥挤,主卫中带有独立阳台,平时可以利用阳台单独晾晒衣服。
2f图二
和第一稿方案相比较,第二稿方案中,主要调整了主卧中的衣帽间,将原本的衣帽间墙体拆除,直接沿着墙面定制整墙衣柜,收纳空间更加强大,同时在衣柜旁布置了一个梳妆台,方便女主人使用,偶尔也可以利用梳妆台做办公桌,在房间办公,更加方便。
3f
三楼主要是一家人的休闲娱乐空间,下沉式庭院,宜静宜动,有丰富空间层次,丰富家居生活的视觉效果,带给家人美的享受,家庭活动区域可以装投影仪和唱歌设备,家人聚会,朋友来访时,可以在这看电影,唱歌,聊天,同时还有一处品酒区,是爱酒人士的浪漫空间。
软装意向分析
玄关
玄关空间宽阔,设有入户花园,为家人营造温馨浪漫的氛围,在入户门与住宅之间起到一个过渡作用,玄关处到顶鞋柜的设计,收纳功能强大,玄关中间留空,可以随手放置钥匙、包包、摆件等物,提高空间的实用性和时尚度,鞋柜附近可以摆放换鞋凳,方便平时更换鞋子。
客厅
一楼大厅是家庭休闲娱乐、亲子互动交流的场所,而且还兼具会客的功能,因此,整体的设计偏浅色调,显得空间更加开阔,给人的氛围感也更加舒适,因为一楼除了客厅空间,还有厨房,餐厅以及一间卧室,所以要将大厅设计成休闲区和就餐区,设计的要有空间层次感,整个客厅的弧形沙发,更容易营造热闹欢快的氛围,也能起到很好地装饰作用,落地窗户保证了室内充足的采光。
餐厅
客餐厅一体化的设计,以沙发作为隔断,分隔出休闲区和就餐区,木质餐桌搭配同色系餐椅,适当点缀装饰植物,可搭配些同色系简单花纹的桌布,靠枕,椅垫,餐桌旁的墙面打造柜体,既是收纳柜也是展示柜,增加餐厅时尚感的同时还能实现收纳功能,餐边柜中间留空,可以放置一些咖啡机,热水壶等电器,缓解厨房的收纳压力。
书房
一楼的房间做书房设计,将整个休息空间挪到二楼,书房整体空间通透,整体空间的色调以简素为主,让空间显得格外舒适而优雅,百叶窗的设计,让书房能保持隐私性和明亮通透感,透过百叶窗的光线,斑驳的光影照在书房空间,让空间显得格外的简约自然而舒适,书桌上面的书架,收纳了书籍和相框,也让工作空间更加温馨和有书香气息。
主卧
主卧空间宽敞独立,独立衣帽间,独立卫浴,不仅可以提高空间的利用率,还可以保证私密性和舒适度,也是高品质生活的象征,整个空间的装饰简约时尚,灰色双层窗帘的设计增加了整个空间的实用性,可以有效地遮挡住夜晚外面的灯光,到顶的衣柜设计,收纳功能强大,透明柜门的设计,更易于挑选衣物,减少盲目翻找的不便,美观又实用。
南次卧一


白色和木色的简单结合,干净明朗,无杂乱之感,营造出了一个舒适的睡眠空间,床头背景墙上的装饰画,让整个卧室空间精致又不失简约,家具线条简约流畅,达到了以少胜多,以简胜繁的效果,打造了不同层次的丰富和归属感。
南次卧二
这间南次卧打造成儿童房,做了高空间利用率的设计,整体以白色简约为主,利用床头背景墙做洞洞板,既达到了收纳的需求,又能利用洞洞板的特点,自由决定收纳位置,增加空间趣味性,也能培养儿童的动手能力,书桌取代原有的床头柜,为孩子创造独立的学习空间,和家长的工作不会互相干扰。
衣帽间
衣帽间除了要美观,更重要的是能做到分区,这样才能做到迅速的拿取和收纳,设计了很多的小单元格,方便不同品类的小物品都能有专属的小空间做收纳,找起物品更加的省时省力,真的超级美观。
露台


三层露台打造成小花园,和自然融合,颇有生活气息,户外露台也架设木作平台、棚架呈现更自在不羁的情调,阳光大好的天气,可以在露台吃饭,伴着徐徐凉风,阳光洒满这一角落,幸福感油然而生。
整体预算估算



联系居上