2022-08-17 13:57
726

项目地址 | 中海 · 阅湖湾
项目设计 | 居上软装设计
户 型 | 166㎡
项目空间分析
原平面分析

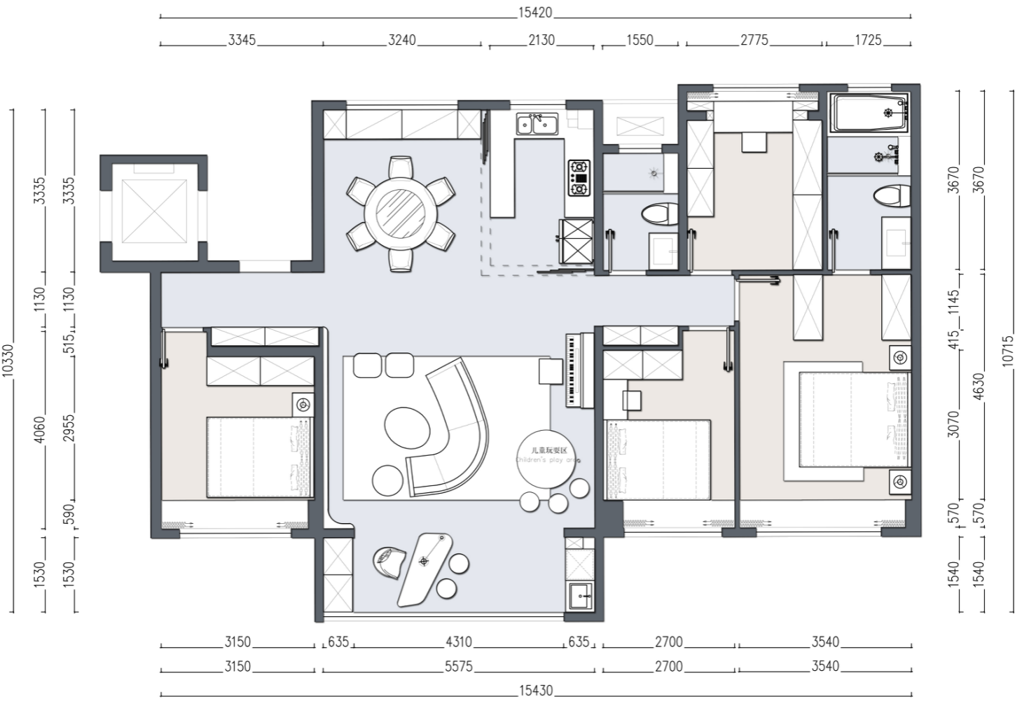
户型:四室两厅两卫
优点:
1、主卧采光好,有独立卫生间,解决睡眠和享受独处的私密空间同时具备一定的储物功能。
2、五米多超长的阳台,满足了日常的洗衣晾晒以及采光和通风。
3、客厅共享书房,开放式的交流学习空间,为家人提供休闲娱乐和会客的区域,整面电视柜满足日常收纳及书籍整理。
缺点:
1、靠近玄关的次卧房间方正,但是距离卫生间有点远,不方便起夜。
2、全屋储物空间需要优化。
3、房间性质需要重新规划。
平面方案
图一
门厅处设计独立玄关,满足日常收纳,解决日常换鞋、取鞋、挂衣、置物等问题,客厅增加功能性的选择,增加开放性的书房,以沙发作为隔断,用于区分休闲娱乐区和办公区,选用整墙收纳,加上一张高级感满满的书桌,轻松营造出有品位的、实用性高的舒适办公环境,待客时,也可以用作茶室来使用,随便改变空间性质。半开放式厨房,一边烹饪,一边聊天互动,一起感受时间的流转和四季的变化。
共四间卧室,三间卧室朝南,采光充足,朝北卧室空间较小,可以改做多功能室,其中两间卧室分别可以用作儿童房和长辈房,主卧中带有独立卫生间,解决睡眠和享受独处的私密空间同时具备一定的储物功能,儿童房中可以增加学习区,便于孩子学习成长。
图二
在第二稿设计方案中,打通客厅阳台,阳光可以透过窗户直接照进室内,采光充足,客厅打破常规沙发设计,异型沙发布置凸显空间个性时尚,这样的布置方式,与家人朋友间的交流也会更舒适。阳台处摆放桌椅,可以在闲暇之时,在阳台上品品茶,约上三五好友,在阳台上漫品人生,也不失为一件乐事。
图三
在第三稿方中,撤掉书房功能和钢琴区域,扩大客厅面积,摆放多组沙发,便于休闲、会客、聚餐使用,客厅设计一整排收纳,储物空间充足,打通厨房与餐厅间的墙,全开放式厨房区域,餐厨一体化,扩大空间,提高利用率,提高家人间的互动交流,餐厨一体设计可以有效利用更多空间做嵌入式的电器柜,整柜加长台面,让颜值与收纳实用并存。主卧中调换床头方向,设计一整排收纳柜,收纳空间扩大。
软装空间分析

A主要空间
包含客厅&餐厅&主卧
此空间作为主人享受家居时光和重要会客区域,使用频率极高,家具强调高品质,美观性。舒适易打理。
B非主要空间
包含女儿房&书房,此空间使用频率相对低,家具注重性价比和装饰性
软装意向分析
玄关
玄关既是收纳区域,也是一个家的展示区域,除了必要的收纳功能要实现外,还可以利用各类装饰品装点玄关,如绿植、装饰画、摆件等,克莱因蓝座椅成为这个空间的灵魂,为清冷简洁的空间增添烟火气和活力。
客厅
客厅中整面墙的木质收纳柜,美观大气,考虑到开放式收纳柜后期收拾太乱,而且视觉空间更乱,采用大部分封闭柜形式,局部镂空作为展示作用,可以放一些古玩装饰,增加客厅的韵味,同时也可以满足少量的书籍布局,装饰和收纳兼顾,落地窗户,保证了充足的采光。
餐厅
餐厨一体化后的U型厨房设计,即水槽、工作台、炉灶、冰箱、收纳柜沿墙排成U型,为开放式厨房中留有充足的空间摆放餐桌,餐厨一体化就可以将餐厨区域的功能充分发挥,设计与功能和谐统一,同时,餐桌也可以充当一个岛台,不仅可以用于厨房切配,还能充当吧台和餐桌,减少中间冗余环节,美观实用,极大方便生活。
主卧
主卧装修偏简洁素雅,白墙和天然木色搭配,造型简洁大方,线条饱满流畅,给人一种自然舒适的家居体验,而木地板的颜色可深可浅,简洁又百搭,整面墙的收纳空间,储物空间充足,房间装点各种装饰画,装饰画要选用贴合整体房子装修风格和氛围的画,这样才能达成完美的统一。
南次卧一
作为朝南卧室之一,采光充足,房间整体偏向简洁大方,可以用作老人房,多使用木质、圆角或者少棱角家具,避免老人日常生活中发生磕碰,其次房间隔音效果要做好,老人大都喜静,睡眠浅,过于嘈杂的环境,容易影响老人入睡,灯光可以选用偏暖色系,可以给来人带来温馨感。
南次卧二
这间南次卧作为儿童房使用,充满梦幻童趣氛围,儿童房装修,书桌和收纳空间必不可少,书桌方便孩子们日常的学习和读书,孩子的成长过程中,各类物件会越变越多,收纳空间必须足够,才不会使得空间杂乱无章。
书房
定制书柜满足书籍收纳的需求,书柜的定制一定要适量,避免过大的书柜让书房感到拥挤而让人压抑和不舒服,相较于卧室中的书桌,书房中的书桌更加的宽阔舒适,不会让人在工作时感到局促和不舒服,独立的书房会更加安静,便于你可以静下心来学习工作,也能提升学习和工作的效率。
阳台
打通客厅和阳台空间后,利用客厅的休闲阳台做品茶区,既可以欣赏外面的一缕风景,又能和好友两人喝茶谈心,这样的生活太妙哉!
整体预算估算


联系居上