2022-04-26 10:51
729
项目 | 泊云庭
设计 | 居上软装设计
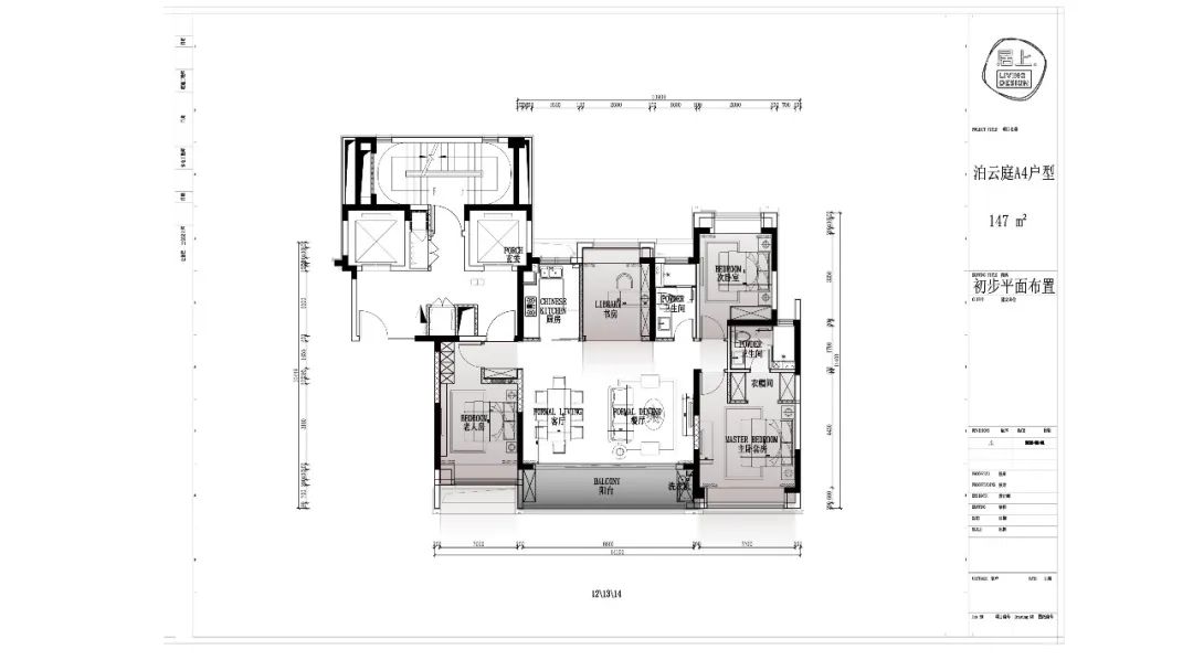
户型 | A4 147m²
“ 项目空间 ” 分析



客厅、厨房卫生间都是通铺地砖,卧室及区域连接处交付是地板,有中央空调以及厨房基础厨具。整体交付标准的包容性还是较强,可塑性很高。

上图可以看到整个户型方正,通透,每个卧室都有敞亮的阳台,对于一家三代同堂居住完全没有问题。但是考虑到现实问题,没有一定的储物空间,所以在接下来的平面上,调整了平面布局,更适合于业主功能性的需求。
“ 空间布局 ” 方案

户型 :四室两厅两卫一厨
入户玄关增加收纳鞋柜来放置日常出入需要的物品,客餐厅作开放式,公区整体感觉视野比较开阔,并且后续如果入住人多,也可以在餐桌旁补充收纳厨房电器、厨具等。
卧房设计需以每个空间的居住者为主的,以功能性为主,用衣柜和斗柜来增加公共空间的收纳性。其次需要考虑是否对于梳妆台或者是简单的小办公台的需求。朝南的两个房间定位成主卧套房和老人房,因为朝南通风和采光都比较有利于老人居住,老人房以简单大方、方便活动为主,需要以老人的需求为前提。
朝北房间可以作为儿童房,如果是一胎家庭可以将稍微小点的房间作为多功能房,男主人喜欢看书经常需要在家工作,可以定位成书房,也可以当作孩子的学习空间等。
“ 软装意向 ” 效果图
· 玄关 ·


端景台是通常放在玄关、过道等空间不大的地方,用于摆设装饰品,如花艺、工艺品、装饰画等,丰富空间,美化环境,提升居室颜值的家具。不仅可以装饰空间,在一定程度上也可以用于收纳,如放置鞋子,充当鞋柜,或者放一些日常用品,总之兼具了实用功能。
或者也可以利用入户门的收纳柜打造玄关,玄关柜可以根据不同的需求规划好储物区、置物区、挂衣区,能够满足日常出入需求,并在柜体中部和底部采用留空设计,方便包包、帽子等装饰品的放置,也可以放置当日的鞋等。
· 客厅 ·



客厅 沙发 在陈列方式上面和平面布局上,可以有很多形式来陈列,整个空间看起来就会大很多。
如果需要收纳比较多,可以把整个电视墙做成 定制电视柜 ,在整体定制电视柜的基础,在下方加入一个石材地台,大理石与定制柜相结合,可以让电视墙显得实用而又时尚高档;也可以根据不同的风格提炼出设计元素来,将客厅增加更多的背景,增加整个空间的个层次感。比如说美式风格和现代风格,都可以用壁炉的设计元素来丰富空间。
· 餐厅 ·



餐厅区域开间作为一个整体来感受,尺寸上比例都是没有任何问题,五六个人日常饮食是完全可以的。餐边柜 是结合卡座来设计的,既小资又多元,一家人围坐一起吃饭,其乐融融,是非常温馨的画面,当然卡座边上可以供我们日常的收纳,比如杯子、茶叶,完全可以实现收纳功能。
· 主卧 ·

主卧在整个家庭中,是仅次于客餐厅的一个重要区域,但是衣帽收纳相对是不够的,可以增加床头柜,同时在床尾也可以增加 斗柜,这样一来,叠放衣服可以设置在这些区域。同时在主卧房可以设置梳妆台,满足女主人的使用,结合步入式衣帽间来尽可能增加主卧房收纳来满足居住的使用。
飘窗 当作mini的休闲区来使用,一本书一杯茶临时小憩。
无论是通过色彩还是通过材质来增加一些质感,来凸显男女主人的品味。
· 女儿房 ·
浪漫迷人的粉色系女孩房,营造轻松愉快的睡眠氛围。利用靠窗的墙体,打造成了书桌与书柜一体的学习空间,阳光充足,给小朋友提供一个舒适的环境。
以简约大方为主,在满足小朋友对空间的基本需求之外,墙面的设计也让视觉和触觉都回归简约,呼应了孩子想象力纯粹的原点。除了学习区和休息区,还留出了足够的活动区,空间并不压抑。
· 儿子房 ·


男孩房的设计避免采用过于温柔的色调,更适合淡雅的冷色。睿智儒雅的灰色,刚好可以表现出男孩逐渐成熟的个性。大面积的灰色容易让人感觉沉闷,黄色进行点缀为其增添了一丝时尚,使整个空间富有层次而不违和,充满活力和灵动感。
对于玩具和书本,墙面矮柜设计是一种不错的选择。可以把矮柜分成多个格子,分隔清晰明确,存储空间丰富,日常拿取物品方便顺手,同时也不耽误展示摆件。多隔层的处理能将许多东西分门别类的摆放,让房间变得井井有条。
· 多功能房 ·

房间空间不大,可以设置整墙收纳柜,另一边增加供两人使用的书桌;也可以选择定制L型书柜+书桌一体式,靠窗光线也比较好。书桌抬高部分,可以做抽屉,上面做台面,同时桌面需要稍微外抛些,这样可以考虑到腿的舒适性。
如果是在家办公较少,不需要独立书房。那就可以设置为多功能房,放置两人位的沙发,同时沙发也可以作为床使用,比如家里偶尔需要用到客房。可以把孩子爱好的乐器放到这个空间,当作临时客房或者练习间。
· 老人房 ·
床和床垫直接决定了睡眠质量,对老年人来说,床最好选择带软包头靠的,能够让老人放心倚靠。衣柜的设计也要根据老人的使用习惯,长辈们通常都是叠放衣物较多,挂件较少,所以规划衣柜内部时可以多做些层板和抽屉。
设计布局尽量简洁大方,家具多靠边、沿四周摆放,留下足够宽敞的行动空间,避免脚下细小的杂物,绊倒老人。
· 卫生间 ·

卫生间硬装交付的已经比较多了,更多的还是要软装饰的东西去做空间的营造,传统的家里房间,是以一些不同品牌的洗护用品,不同包装放到浴室房中,现在也可以多多去考虑后期,以后可以买统一卫浴四件套,加上香薰,把整体空间做的更好,整体卫生间的做的比较精致,在其中泡澡时心情也会完全不一样。
· 阳台 ·


因为阳台比较长,所以要规划好功能区和休闲区。功能区搭配顶柜或者置物架,也可设计顶天立地收纳柜,增加收纳空间,并嵌入洗衣组合柜,最大化利用墙面空间,并做好晾晒区域的划分;
对于休闲区,在阳台上去放置吊椅或喝茶区域,在休闲的午后,一杯咖啡,一本书,听着音乐还是非常惬意的,又或是和孩子在阳台上一起下棋,做手工,是非常好的亲子时光。


联系居上