2022-04-08 14:51
633本篇对金融街融悦湾207m²户型的软装方案解析。
软装设计是对于硬装的修饰,加上色彩和质感的搭配,
所以营造意境氛围当中很大一部分都是由软装设计来决定的。
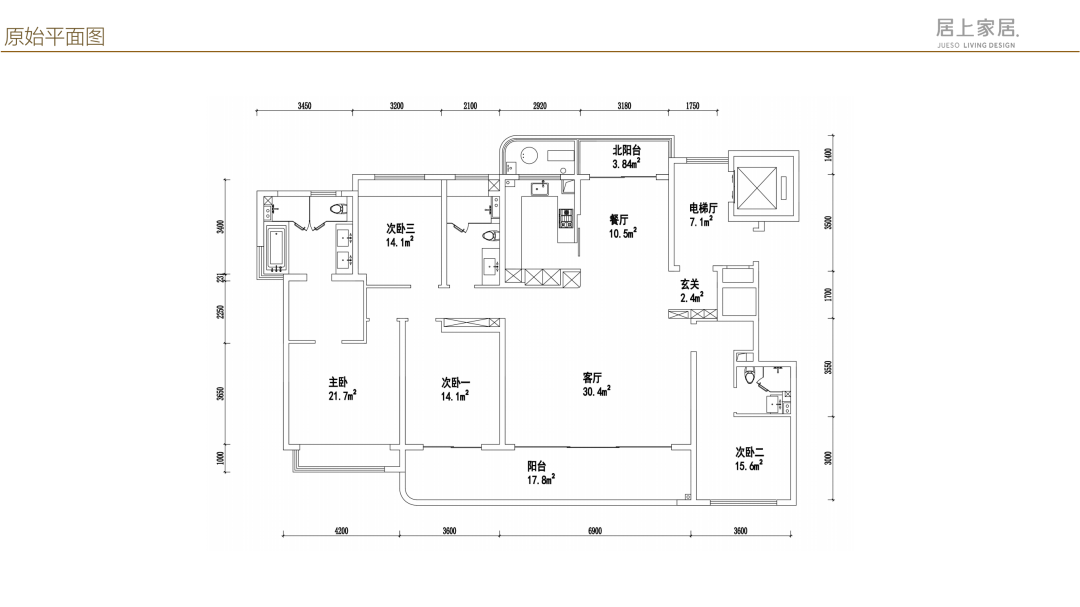
户型分析
户型为四室两厅三卫一厨
交付时 门厅 有收纳柜,但是深度较窄,后期是可以在玄关做一些补充性的收纳柜,比方说鞋或者是换季的鞋子、外套、包包、围巾之类的,我们通过内部的一些细化去做整体的布置。
客餐厅以及阳台是一个将南北连在一起的空间,整个空间还是相对比较方正的,活动区也是比较宽阔,在这个空间里边舒适度来讲也是还不错的。
因为餐厅空间不是特别大,但是比例适中,采光和通风很好,需要适当增加收纳,弥补厨房空间的不足。
客厅整个功能上面没有什么太多的问题,主要是硬装交付的时候,是有一个背景的,对于我们后期的软装搭配相对来讲是有局限性的,如果说我们想要有一些其他的风格元素在里边,那整体后期是要做一些调整的。
主卧、次卧以及北边的多功能房和书房,整个来讲采光和通风是还是不错的,但是比方说南边的卧室,相对来讲空间上面是比较的局促的,如果我们后期再选择家具产品,可能是要严格去把控尺寸。
书房和衣帽间 是考虑到对于整个居家来规划,精装房一般情况下收纳是不太充足的,需要做一些补充的收纳,后期是可以作为一个书柜的收纳,或者是作为衣物的收纳,学习区、书桌区也是考虑到如果我们平时需要阅读或者是有偶尔办公的情况来使用。
风格定位和平面方案
现代风格 设计追求的是空间的实用性和灵活性。居室空间是根据相互间的功能关系组合而成的,而且功能空间相互渗透,空间的利用率达到最高。
空间组织不再是以房间组合为主,空间的划分也不再局限于硬质墙体,而是更注重会客、餐饮、学习、睡眠等功能空间的逻辑关系。
通过家具、吊顶、地面材料、陈列品甚至光线的变化来表达不同功能空间的划分,而且这种划分又随着不同的时间段表现出灵活性、兼容性和流动性。
对于整体空间,一定要有主次之分(如上图),整个空间一定以客餐厅和主卧作为整体空间的 主要空间,使用频率相对更高,家具更强调品质和美观,同时具备舒适性,便于打理。
次卧以及书房属于次要空间,需要更注重性价比与装饰性。
我们现在看到这张图,是 软装产品数量分析图,软装区别于硬装的是,软装是需要有产品落地的,我们能看出来,家具大致需要39件,木作大致6处,窗帘大致需要6处,地毯大概需要4块,灯具大致在11件。
第一种方案
将 客厅 以沙发为间隔,增加休闲吧台。可以当小餐桌,喝酒聊天,或者做为小工作区,看书办公。不仅美观还实用!
主卧 作为套房,将睡眠空间+衣帽收纳空间+洗漱空间为一体,床尾有需要的话,可以增加抽屉柜收纳跟梳妆台,两个南次卧独立的大衣柜能够满足客房的日常衣物收纳。北次卧 设立成独立式的书房供学习和办公使用,这样就算男女主人都需要在家办公,也能互不打扰,非常的安静。
第二种方案
这个方案比较适合多人口家庭刚需使用,客厅作休闲+会客为一体,增加家人之间的沟通和交流,北次卧当做客房来使用,每个房间都设立衣柜,增加各个空间的收纳。
软装意向分析
· 玄关 ·
玄关 以木饰面为视觉主导,集收纳、换鞋于一体的门厅柜,底部悬空留出放鞋位置,承载了功能与装饰两大特性,让入户的功能需求与极简美感同时得到满足。
· 客厅 ·





客厅整体格调沉稳,做满墙电视柜的设计,美观与实用兼备。L型沙发搭配异形沙发的布置,令空间多了些跳跃感。
客厅还设有小吧台,凸显小资情调,坐在这儿和家人朋友小酌一杯,一定非常惬意自在。或者可以当成休闲区,放上男女主人喜欢的钢琴,画面也非常的美好。
· 餐厅 ·


再忙也要好好吃饭,好好吃饭的前提是拥有一张舒适又耐看的餐桌,可以让一家人围坐其边,享受味蕾与精神的双重慰藉。
餐厅 挑选餐桌时最先需要考虑的要素是材质。餐桌的材质需要贴合厨房的风格,帮助你塑造理想中的用餐氛围。
· 主卧 ·

主卧室 的区域由几大功能区组成,一面墙体将寝区、更衣室区分开,墙体是用咖色材质进行隔断,柔软的材质充分体现着卧室空间的舒适属性。

衣帽间 的衣帽收纳,首先应该结合业主的工作生活习惯,同时根据身高做个性化的定制设计,区分开长短衣物、包包、帽子、皮带等区域日常收纳的习惯。
· 次卧 Ⅰ·

其中一间 南次卧 当做儿童房使用,床头作硬包,整体软装可以以颜色来区分小主人的性别或者以长远来看,可以用中性色为基调,以简约和性价比来装饰整个空间,房间的采光和照明比较重要,并且单独的学习区域需要宽敞一些,还需要增加一些书本的收纳。
· 次卧 Ⅱ ·

此房间当做 长辈房 来使用,长辈们大都阅历较深,爱好和品味与年轻人有所不同,大都追求大气沉稳的风格,因此空间装饰要突出主格调,各种点缀装饰不宜过于夸张应与空间装饰、家具造型及风格相协调,形成舒适、安逸、稳重的氛围。
房间设计尽可能简洁实用,不宜太过于繁杂的装饰、不适合摆放太多家具,为老人家保留更多的活动空间才是最重要的。
· 书房 ·

北面的小房间当作独立 书房使用,形式是多种多样的,不同的风格有不同的设计手法以及材质的运用都是跟风格息息相关的,需要注意的是顶面跟侧面,他跟墙体的一些收口的问题,材料肌理的选择,也应该跟灯具、窗帘这些软装方面的东西整体统一起来去考虑。
· 洗衣房 ·

此区域为 洗衣房 ,是集机洗、手洗、晾晒和收纳的区域,可以再添加一些设备,洗衣、熨烫、收纳一条龙,并且设置单独的操作台,洗衣房不单只是洗衣的地方,也可以在这里缝补衣服,或者进行其他需要用水的活动。
· 阳台 ·

院子虽美,但不是每个人都有条件、时间和经历去营造和打理的。相比之下 阳台 就比较省时省力了,其实大的阳台一样可以打造出美丽的空中花园。
天气晴朗的时候,大家都喜欢出去晒晒太阳,呼吸新鲜空气,在阳台上摆放一张户外沙发,在上面坐着休憩或者和朋友喝茶聊天,这是多少忙碌的都市人向往的闲逸生活。
或者也可以将阳台改成运动休闲区域,适时的放松身心在快节奏的生活里是很有必要的。
整体方案预算估算
上图是大概软装设计所包括的类目和价值占比,现在精装房越来越多,而软装设计师就是是从整体上综合策划装饰装修设计方案,体现出居住者的个性品位。


联系居上